
CAN SKYE

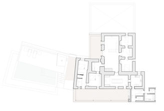
Se rehabilita una “Casa Pagesa” de 150 años de antigüedad. La vivienda había sufrido distintas ampliaciones de poca calidad a lo largo del tiempo perdiendo su carácter original. El proyecto elimina todas estas construcciones añadidas recuperando la esencia de la vivienda principal, se respetan todos los muros originales de piedra y cal con sus aperturas, y se rehabilitan todas las cubiertas de sabina. Se da valor a los espacios de “porcho”, “cuina pagesa” y ”casa de dalt”.
Se crea una nueva pieza al este con una lavandería y un nuevo porche desde el que se ve el mar.
El resto del programa se construye fuera del conjunto principal para mantener la proporción y estética de la vivienda original. Serán piezas de piedra que se integrarán en los bancales existentes, en un nivel inferior al de la vivienda principal.



















